zurück zur Projektübersicht

ISEK Gemeinde Ebelsbach

Integriertes Städtebauliches Entwicklungskonzept mit Vorbereitenden Untersuchungen

Das integrierte städtebauliche Entwicklungskonzept mit vorbereitenden Untersuchungen (ISEK mit VU) zeigt die Entwicklungsmöglichkeiten der Gemeinde Ebelsbach auf vor dem Hintergrund sich ändernder Rahmenbedingungen sowie vorhandener städtebaulicher Probleme und nimmt eine Weichenstellung für die weitere Gemeindeentwicklung vor.

Mit dem ISEK werden die unterschiedlichen Aufgaben der Ortsentwicklung fachübergreifend behandelt und in eine gesamtörtliche Entwicklungsperspektive eingebunden. Dabei stand die Stärkung und der Ausbau der Altorte als attraktive Wohnstandorte mit guter Versorgungsstruktur und hoher Aufenthaltsqualität im Mittelpunkt. Die beiden Altorte Ebelsbach und Gleisenau wurden aus diesem Grund im Sinne vorbereitender Untersuchungen (VU) nach § 141 BauGB vertiefend analysiert.

Das Integrierte städtebauliche Entwicklungskonzept mit vorbereitenden Untersuchungen wurde in einem interaktiven, mehrstufigen Verfahren in enger Zusammenarbeit zwischen den Planern, der Politik, örtlichen Akteuren und der Verwaltung erarbeitet. Der Schwerpunkt lag somit im dialogorientierten Verfahren. Das stufenweise Vorgehen gewährleistet mit zunehmender Untersuchungsschärfe eine nachvollziehbare Ableitung von Zielen, Konzepten und Maßnahmen auf der Grundlage einer Stärken-Schwächen-Analyse.

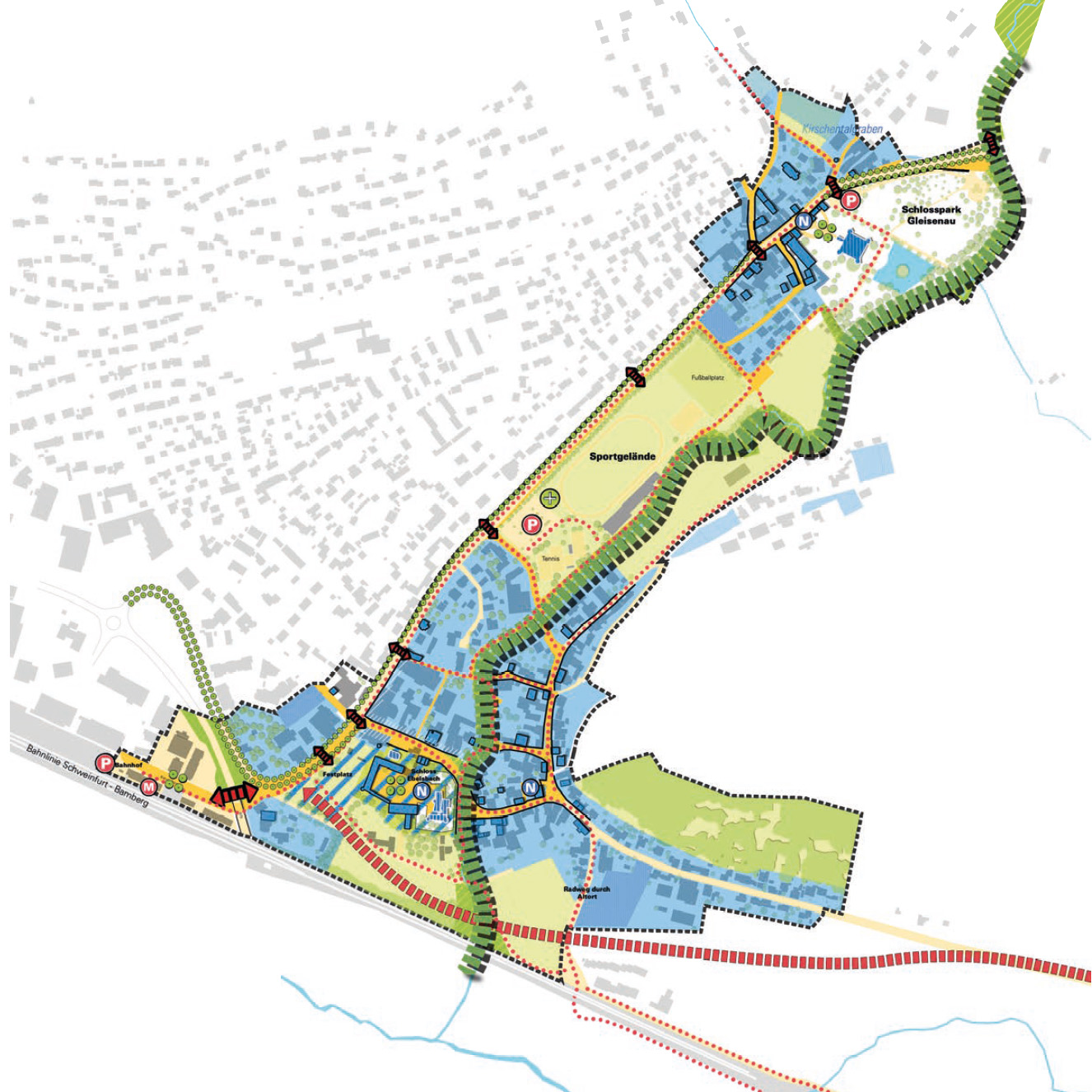
Das Untersuchungsgebiet im Rahmen der VU umfasste im wesentlichen die historischen Altorte von Ebelsbach und Gleisenau. Mit den Zielen, dem Rahmenplan und dem zugehörigen Projekt- und Maßnahmenkatalog wurde schließlich der Vorschlag eines Umgriffs für ein zukünftigen Sanierungsgebiet aufgeführt, mit zugehöriger Begründung.

Art
Integriertes Städtebauliches
Entwicklungskonzept (ISEK) mit
Vorbereitenden Untersuchungen (VU)

Bevölkerungszahl Gemeinde /
Größe VU-Gebiet
ca. 3.700 EW / ca. 47 ha

Bearbeitungszeitraum
2024

Kooperation
Salm & Stegen, Memmelsdorf

Auftraggeber
Gemeinde Ebelsbach

Ansprechpartner
VG Ebelsbach
Georg-Schäfer-Str. 56
97500 Ebelsbach
09522 72520
info@ebelsbach.de